



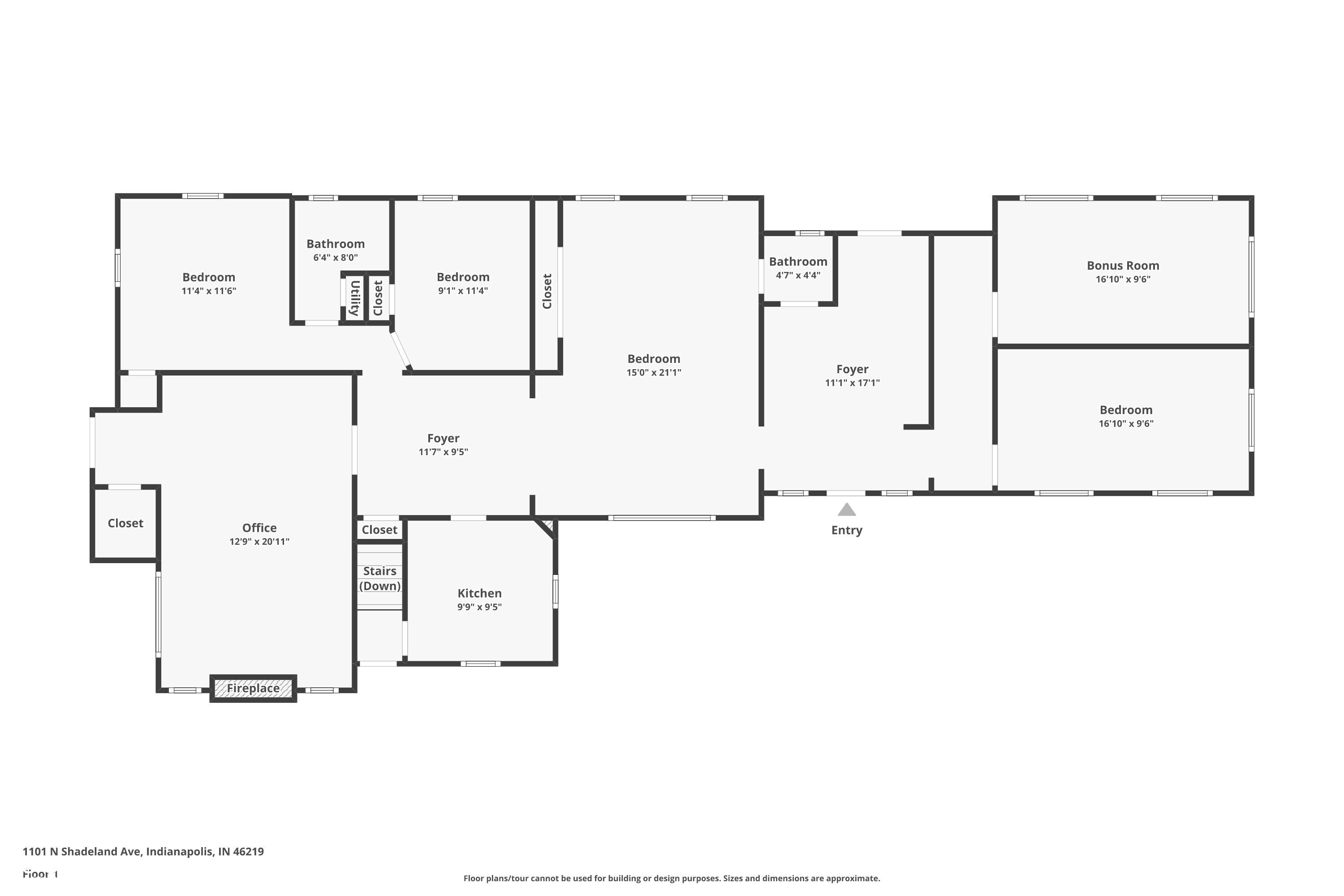
Prime commercial opportunity on N Shadeland Avenue offering excellent visibility and accessibility. This freestanding, single-story office building is zoned C-1, providing flexibility for a variety of commercial uses including professional office, medical, retail service, or small business operations. Situated on approximately 0.30 acres (13,125 sq ft lot), the property features city street frontage with asphalt access and assigned/common parking. Utilities include gas, electric, sewer, and water, with cable available. The one-story layout offers functional space suitable for owner-occupants or investors seeking a well-located commercial property. Conveniently located in Warren Township with easy access to major roadways and surrounding commercial activity.
| 6 hours ago | Listing first seen on site | |
| 6 hours ago | Listing updated with changes from the MLS® |
Did you know? You can invite friends and family to your search. They can join your search, rate and discuss listings with you.